Just Listed

"Tallowood" - panoramic views, immaculate home and gardens set on almost 150 acres

This stunning lifestyle property offers an idyllic piece of mid north coast acreage within easy reach of local settlements, Beechwood, Wauchope and Port Macquarie.

The 59.67 hectares (147.69 acres) of grazing land with forest pockets is divided into five well-fenced paddocks, each with its own water supply from the four dams and seasonal creek, providing opportunities for cattle, horses and petrol-powered fun.

Epic views in almost every direction define the immaculate brick home that enjoys stunning vistas from every room. The iconic Bago Bluff escarpment is on full display providing a stunning backdrop to the Hastings River valley below. 

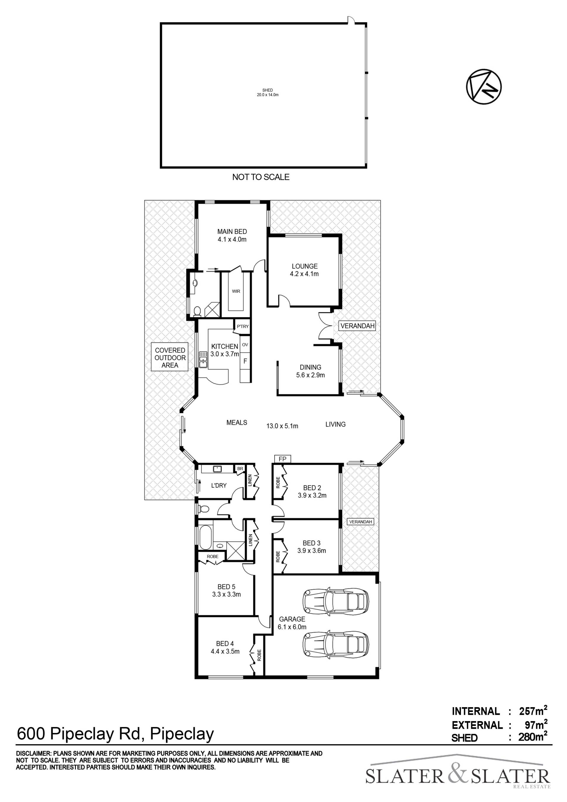
The immaculate home features a spacious open plan living, dining and kitchen zone with bay windows to capture the panoramic views. There is an additional lounge/media room, separate study, and five bedrooms. The primary bedroom suite benefits from a walk-in wardrobe and ensuite and the second bathroom has a shower and separate bath.

With verandahs front and rear there are plenty of peaceful places to enjoy the outlook while the large spa offers a perfect spot for star gazing.

There are numerous additional features including a 20m x 14m colourbond shed, steel cattle yards, a pretty seasonal creek, plentiful rainwater storage and significant and attractive irrigated gardens and sculptures around the home.

Offering complete privacy, this property combines a beautiful living environment with the convenience of being easily accessible to local amenities and services.

Please contact the exclusive agents Julie Slater on 0499 994 241  or Nick Slater on 0427 722 725 for more information.

5 2 10 59.67 ha
Address 600 Pipeclay Road, Pipeclay Via, Beechwood
Price $2,150,000
Property Type Residential
Property ID 716
Category Acreage Semi-rural
Land Area 59.67 ha
Floor Area 379 m2

Agent Details

Julie Slater photo

Julie Slater

0499 994 241
View Profile