House-sized villa opposite golf course

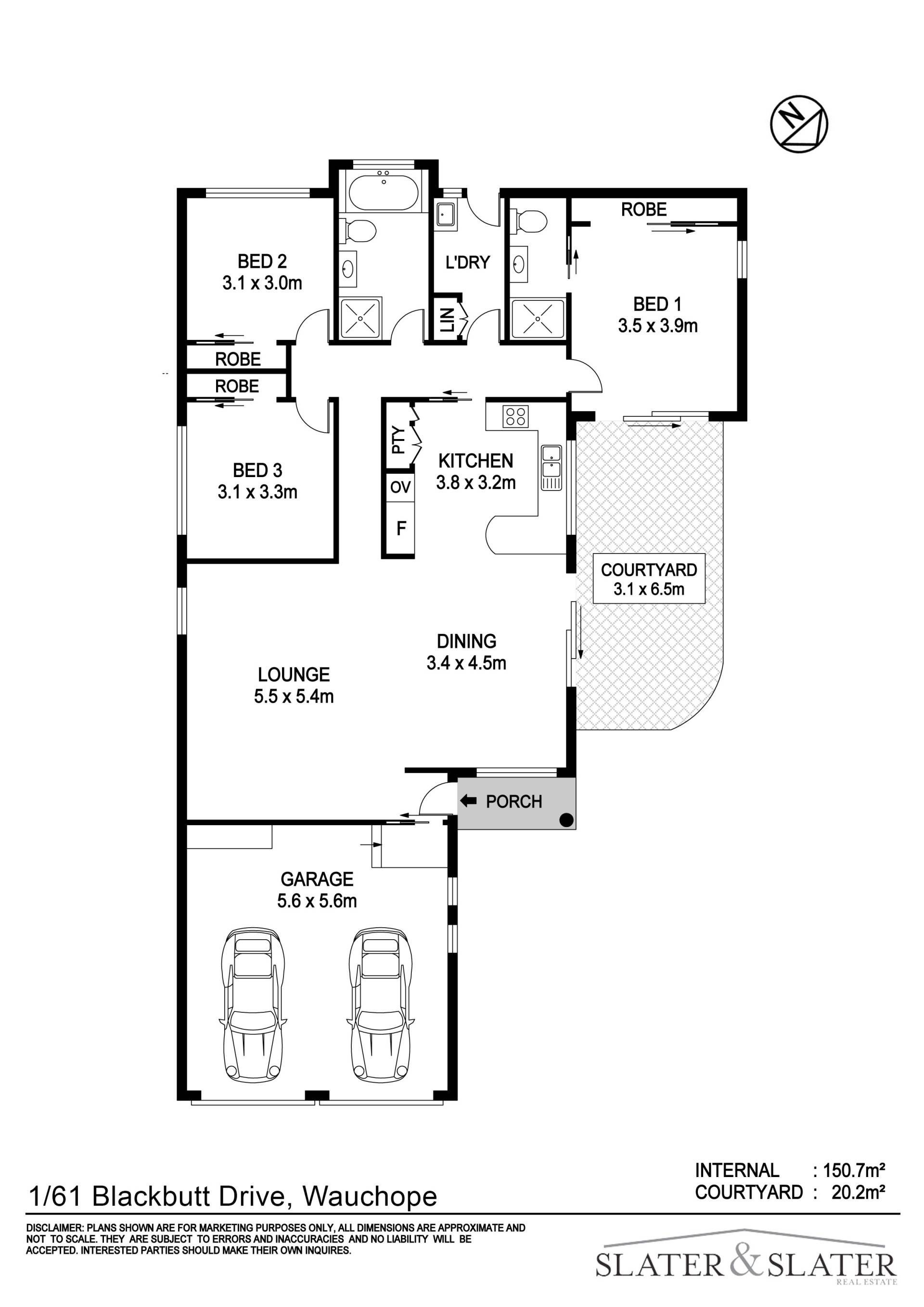
This three-bedroom villa offers a generous floor plan while maintaining the convenience of a small easy care manageable block.

The large open plan air conditioned living, dining and kitchen zone has sliding doors to a private courtyard. There are all new appliances in the kitchen (stovetop, oven and dishwasher) and a new rangehood will also be provided.

The main bedroom with ceiling fan has an ensuite with shower and built-in wardrobes and also has sliding doors to the courtyard.

The two other bedrooms have built-in wardrobes, ceiling fans and are serviced by the main bathroom with shower and separate bath.

The home also offers a double garage, rear courtyard and easy access from the road via a separate lane.

With no body corporate fees this property could appeal to investors looking for an opportunity to realise good returns (rental appraisal on request).

Conveniently located to the Timbertown shops and with the golf course opposite, solar hot water and solar panels the property would also be ideal for owner occupiers looking for an affordable property within minutes to everything.

Please contact the exclusive agent Julie Slater on 0499 994 241 for more information.

3 2 2 435 m2
Address Unit 1, 61 Blackbutt Dr, Wauchope
Price SOLD for $515,000
Property Type Residential
Property ID 602
Category Villa
Land Area 435 m2

Agent Details

Julie Slater photo

Julie Slater

0499 994 241
View Profile