THE OLD SCHOOLHOUSE - PORT MACQUARIE HINTERLAND

This charming and versatile property benefits from two characterful homes set on a two acre (8064m2) parcel offering complete privacy adjoining farmland with views to forested hills.

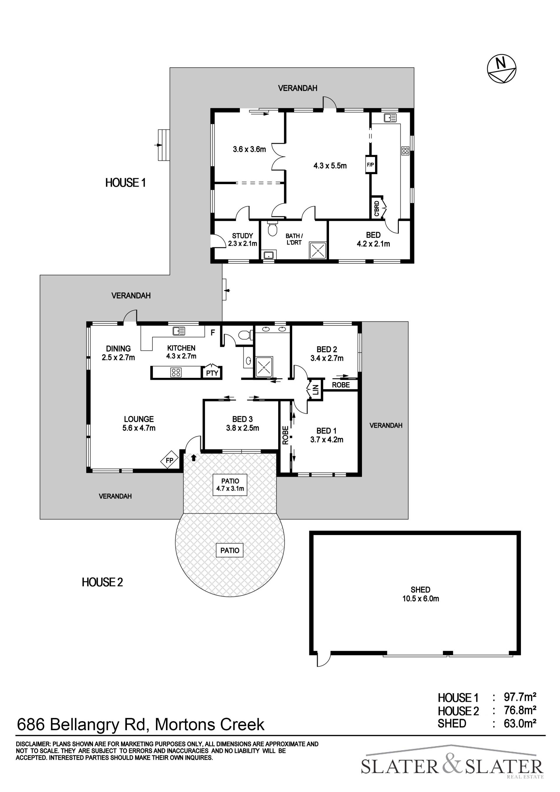
The three bedroom home has benefited from an extensive renovation and features a spacious living and dining zone adjoining a new kitchen. There are three good-sized bedrooms, one used as a study/reading room and a brand new bathroom.

The adjoining former schoolhouse would be ideal as guest accomodation and is currently returning a healthy income on Airbnb. It offers two bedrooms, open plan living/dining, galley kitchen, bathroom with laundry and a study and is fully furnished. The interior is lined with timber panelling and features high ceilings, original brick fireplace and new verandahs on two sides.

Both buildings have had extensive renovations inside and out including beautiful new locally-milled hardwood verandahs, roofs on both buildings, flooring, painting and numerous other updates.

The property also features a three-bay colourbond shed, a set of quality brick enclosures for animals and access to a small dam at the property boundary.

There is also a comprehensive list of inclusions/furnishings including a zero-turn mower to ensure the property can be enjoyed immediately.

Located just over six kilometres from Beechwood, the property enjoys a wonderful rural location within easy access to Wauchope and Port Macquarie.

With the versatility and flexibility of two homes the property would accommodate an array of possibilities. 

Please contact the exclusive agent Julie Slater on 0499 994 241 or Nick Slater on 0427 722 725 for more information.

Features

Verandah Dam Fenced Fireplace 4 Bay shed with 2 open bays Fruit trees Views across farmland Brick livestock enclosures Water tanks x 3
5 2 4 8,094 m2
Address 686 Bellangry Rd, Mortons Creek
Price SOLD for $1,050,000
Property Type Residential
Property ID 600
Category Acreage Semi-rural
Land Area 8,094 m2
Floor Area 175 m2

Agent Details

Julie Slater photo

Julie Slater

0499 994 241
View Profile