Peaceful, established, immaculate and ready to be enjoyed

This established and well presented property is positioned down a small cul de sac in the well regarded King Creek area and offers a level 1.7 acres (6927m2) and a 9 year old four bedroom, two bathroom home ready to be enjoyed.

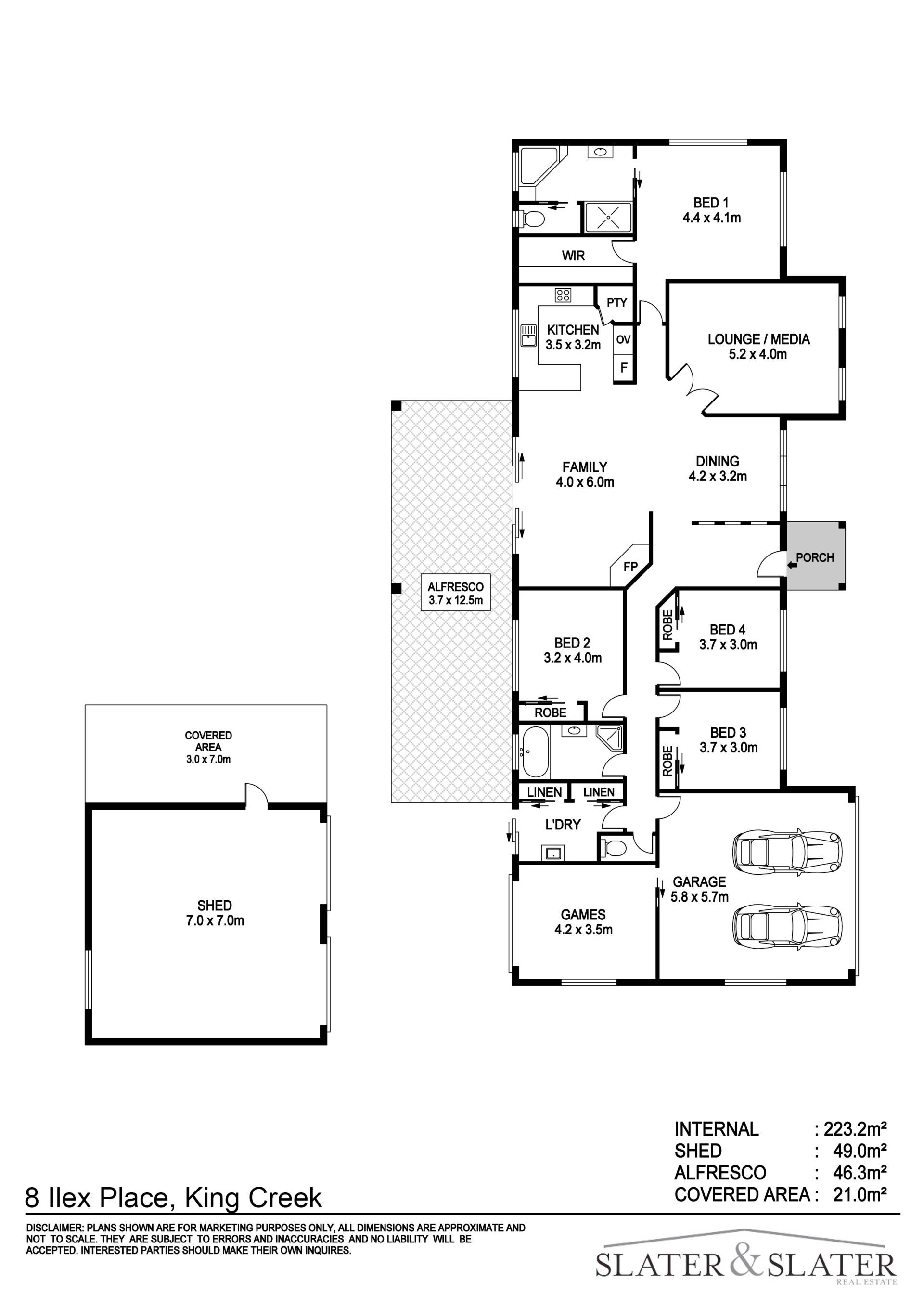
The flowing floorplan promotes indoor/outdoor living with the tiled living, dining and kitchen zone extending through sliding doors to the rear. There is a separate media room as well as a games room at the rear of the garage.

The main bedroom is located at one end of the home and features a large ensuite with shower and separate spa bath and walk-in wardrobe.

The other three bedrooms have built-in wardrobes and are serviced by the second bathroom, also with shower and separate bath.

Mature trees dotted at the rear of the property provide a parkland outlook from the spacious al fresco area and sparkling heated pool with gazebo. The two-bay plus carport shed at the rear is perfect for extra vehicles, toys and equipment and there is a 6.6kw 'battery ready' solar system installed. 

Presenting in beautiful condition with a number of added extras, this quality acreage property can be enjoyed immediately.

Please contact the exclusive agent Julie Slater on 0499 994 241 for more information.

Features: In-built flame gas heater, air conditioners x 2, walk in robe, 6.6Kw solar system, alfresco area with firepit and sitting area, inground heated pool with gazebo, 2 bay shed with carport, separate games room, circular driveway, 5 burner gas stove top, dishwasher, rangehood, baths x 2 (one spa), 23,000 litre water tank and town water.

4 2 5 6,927 m2
Address 8 Ilex Pl, King Creek
Price SOLD for $1,400,000
Property Type Residential
Property ID 581
Category Acreage Semi-rural
Land Area 6,927 m2
Floor Area 290 m2

Agent Details

Julie Slater photo

Julie Slater

0499 994 241
View Profile