Peaceful and private rural lifestyle property around 30 minutes from Port Macquarie

This 108.28 acre (43.82 hectare) property combines peace, privacy and productivity in a convenient location to Wauchope, the freeway and the bustling town of Port Macquarie with its expanding amenities and popular beaches.

Around 50% cleared to improved pastures the property has established trails, frontage to a pristine creek, timbered areas as well as access into Cairncross State Forest and its numerous trails.

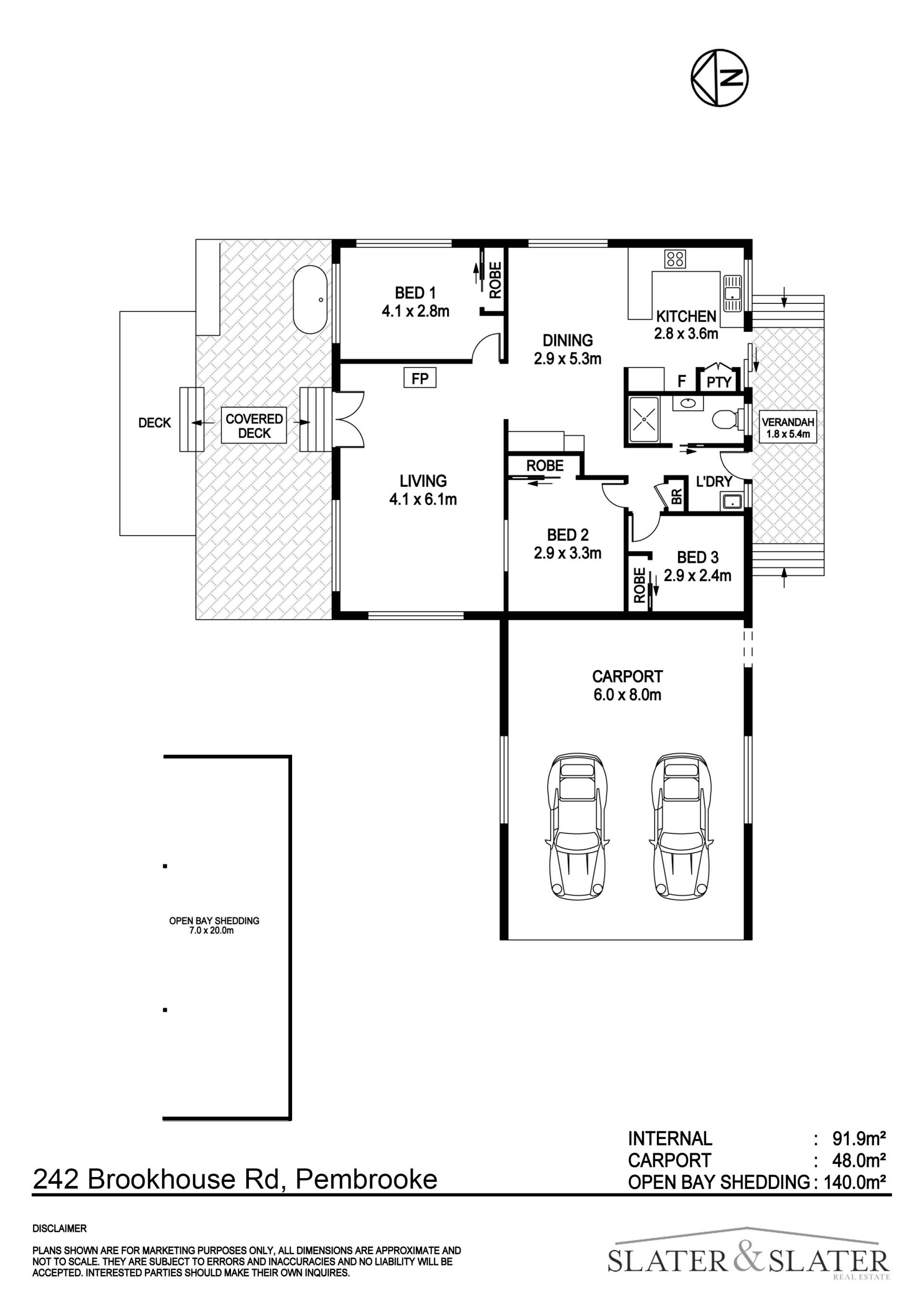
The three-bedroom home is reached via a kilometre-long driveway offering complete privacy. The home is surrounded by a large fenced area of lawns which include a small orchard. The home has recently undergone a thorough makeover with new flooring and carpets throughout, painting as well as upgrades to the kitchen and bathroom.

The rear deck has a soothing outlook over the creek and the rear of the property that rises to forested hills.

There is a solar hot water system, 10kw solar system and three water tanks offering the opportunity to achieve an off-grid lifestyle.

Impressive infrastructure includes a 20m x 7m open-bay machinery shed, five newly fenced paddocks leading to cattle yards and several dams including one stocked with silver Perch.

Buyers seeking a property with absolute peace and privacy that combines productive and easily managed acres as well as opportunities for trail-based adventures should contact the exclusive agent Julie Slater on 0499 994 241 for more information.

Features:

43.82 hectares (108.28 acres), Dams x 3, Main dam with Silver Perch, Shed 20m x 7m open bays, Access to State Forest trails, Fully fenced, Paddocks x 5 fully fenced and all lead to cattle yards, Timber cattle yards with steel race, Water tanks x 3, Orchard x 26 fruit and nut trees, Air conditioner, Wood heater, New kitchen, Renovated throughout, New carpet, Solar hot water, 10Kw solar system with 34 panels

3 1 8 43.82 ha
Address 242 Brookhouse Rd, Pembrooke
Price SOLD for $1,607,000
Property Type Residential
Property ID 564
Category Acreage Semi-rural
Land Area 43.82 ha
Floor Area 140 m2

Agent Details

Julie Slater photo

Julie Slater

0499 994 241
View Profile