Spacious home with mature gardens in quality location.

This established property combines a lovely four bedroom brick home with around 1.5 acres (5638m2) in a well regarded street among other quality lifestyle acreage properties.

The quality home was built 17 years ago and has been well maintained, enhanced and presents in excellent condition.

There is a kitchen and casual dining zone with a breakfast alcove and slow combustion woodheater that connects through to the main family living and dining area. Near-new appliances feature in the kitchen and there is ducted heating/cooling installed throughout the home.

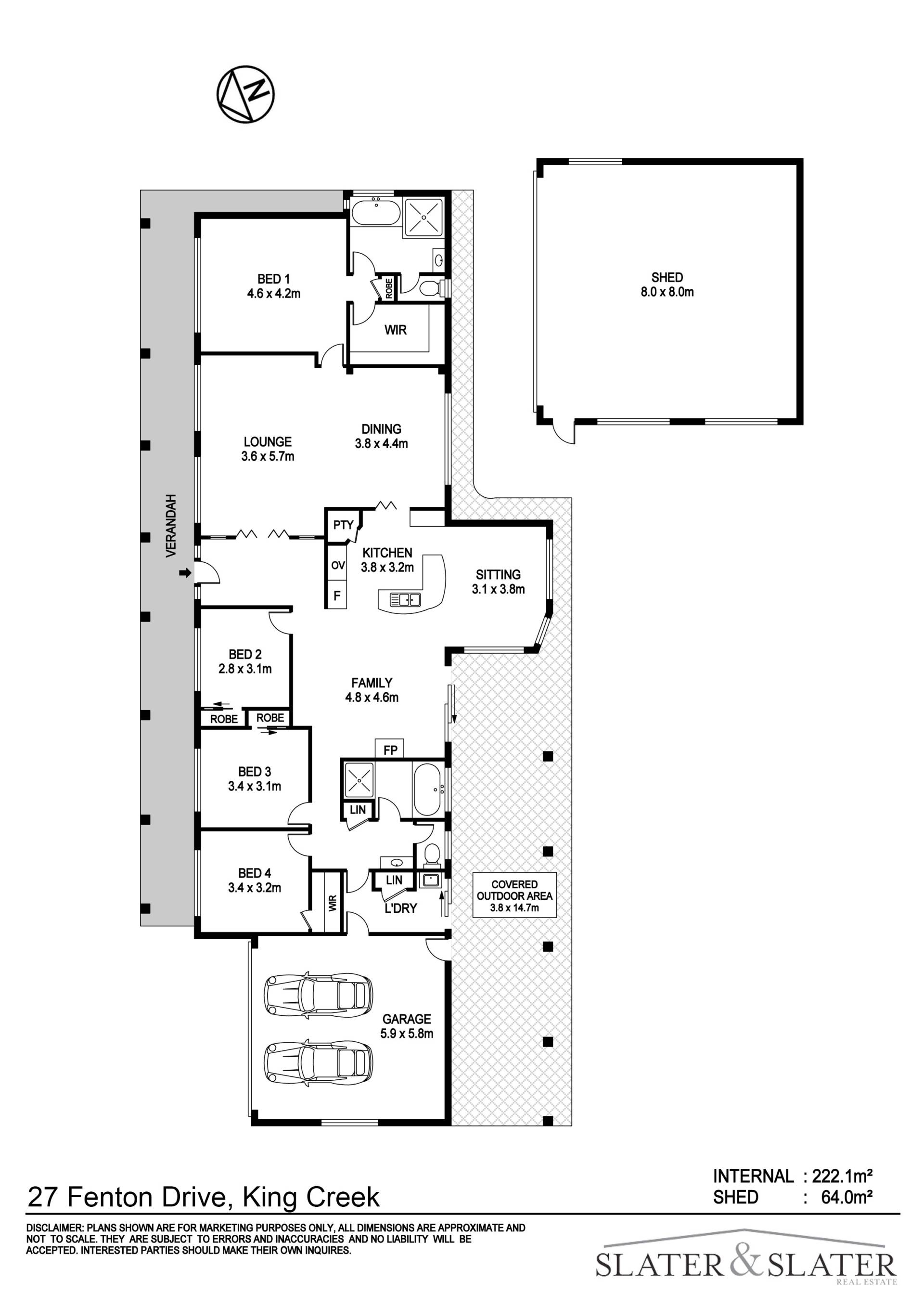
The main bedroom is located at a separate end of the home and it benefits from an ensuite bathroom and walk-in wardrobe.

The additional three bedrooms have built-in wardrobes and ceiling fans and use the second bathroom with a bath, shower and separate toilet and vanity.

A covered verandah at the rear overlooks the landscaped gardens that feature a large variety of plants and trees including a number of citrus, deciduous and four rare and established Wollemi Pines.

The property benefits from a lined 8m x 8m shed and there is 37,500L of rainwater storage for servicing the laundry, toilets and gardens.

Completing this lovely package is a 6.2kw solar system with 10kw/h battery, vacuum tube solar hot water system and additional garden shed, small water tank and greenhouse.

Representing great value, this property offers an opportunity for buyers looking for small acreage living with an established and cherished home and gardens ready to be appreciated.

Please contact the exclusive agent Julie Slater on 0499 994 241 for more information.  

Features: Slow combustion wood heater, 6.2Kw solar system with 10Kw battery, 32,500L water tank and pump & 5,000L water tank servicing toilets and laundry, vacuum tube solar hot water system, 8m x 8m shed with power, ducted air conditioning system, ceiling fans, induction cooktop, garden shed, green house, landscaped gardens with citrus, mango, paw paw and banana, fire pit.

 

4 2 6 5,638 m2
Address 27 Fenton Dr, King Creek
Price SOLD
Property Type Residential
Property ID 556
Category Acreage Semi-rural
Land Area 5,638 m2
Floor Area 222 m2

Agent Details

Julie Slater photo

Julie Slater

0499 994 241
View Profile