"Stratheden" - timeless and elegant custom-built home with mountain and forest outlook

Completed in 2013 by a local custom home builder, "Stratheden" takes advantage of its sought after elevated position with its expansive outlook to Bago Mountain and surrounding forests.

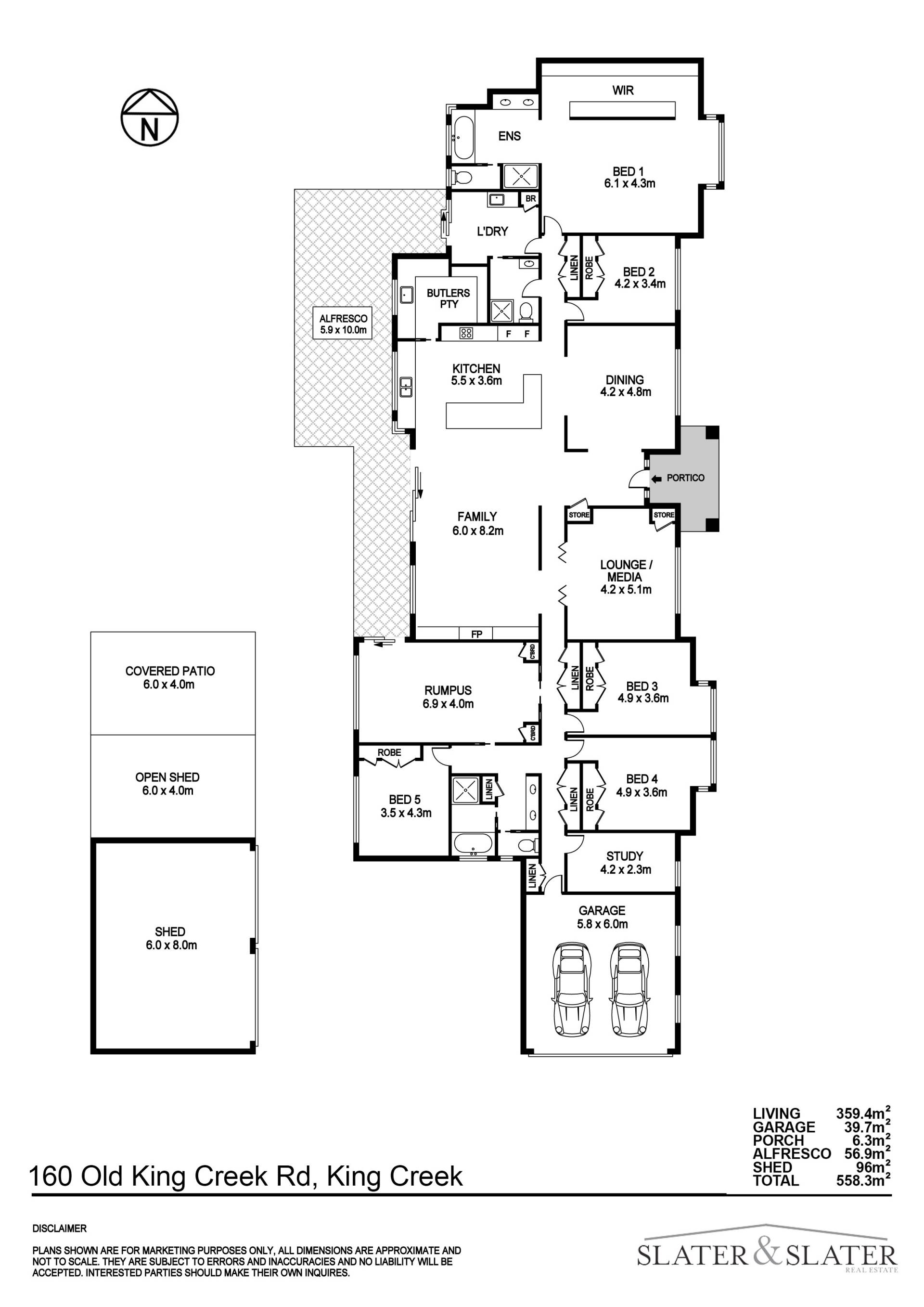
Set on a manicured 6307m2 (1.55 acres), the timeless architectural design features generous dimensions and quality fixtures and finishes throughout which are hallmarks of this 462m2 home.

The floorplan offers five bedrooms, three bathrooms, study, media room and several informal and formal living and dining areas.

An undoubted highlight of the home is the main living and dining zone with the high end kitchen complete with granite benchtops, American Oak cabinetry, 900mm oven and gas stovetop and adjoining butler's pantry.

Nine foot ceilings, quality flooring and extra height doors promote a sense of space and light throughout and year round comfort is assured with zoned and ducted heating and cooling, three gas outlets and a built-in fireplace.

The primary bedroom offers an indulgent space with a walk-around wardrobe, ensuite with spa bath, double vanities featuring the black granite benchtops and a quiet and private position within the floorplan. All the other bedrooms are well proportioned with built-in wardrobes and serviced by two as-new sparkling bathrooms.

Surrounding the home are manicured lawns and attractive gardens with a large alfresco area, 45,000 litres of rainwater storage and a four-bay shed.

Completing this signature acreage living package is an electric sliding entrance gate, NBN connection, full security system and solar hot water system.

Please contact the exclusive agent Julie Slater on 02 6585 2212 or 0499 994 241 for more information and to arrange a private viewing.

 

Features

Separate study Extensive storage Electric front gate Video Security system Ten foot ceiling in foyer Nine foot ceilings throughout Terracotta roof tiles Bay windows Sand Stock brick and rendered Custom crafted front entrance Mud room American Oak cabinetry Black granite bench-tops Alfresco area All weather alfresco blinds Four bay shed Japanese garden Town water Ducted airconditioning system Butler's pantry Built-in robes Walk around robe in main bedrm 2 x 22,500 litre water tanks Study
5 3 6 6,307 m2
Address 160 Old King Creek Rd, King Creek
Price SOLD for $1,600,000
Property Type Residential
Property ID 519
Category Acreage Semi-rural
Land Area 6,307 m2
Floor Area 462 m2

Agent Details

Julie Slater photo

Julie Slater

0499 994 241
View Profile