NEW PRICE

This renovated three bedroom home is set on 5600m2 (1.38 acres) in a quiet and leafy street in the desirable King Creek area.

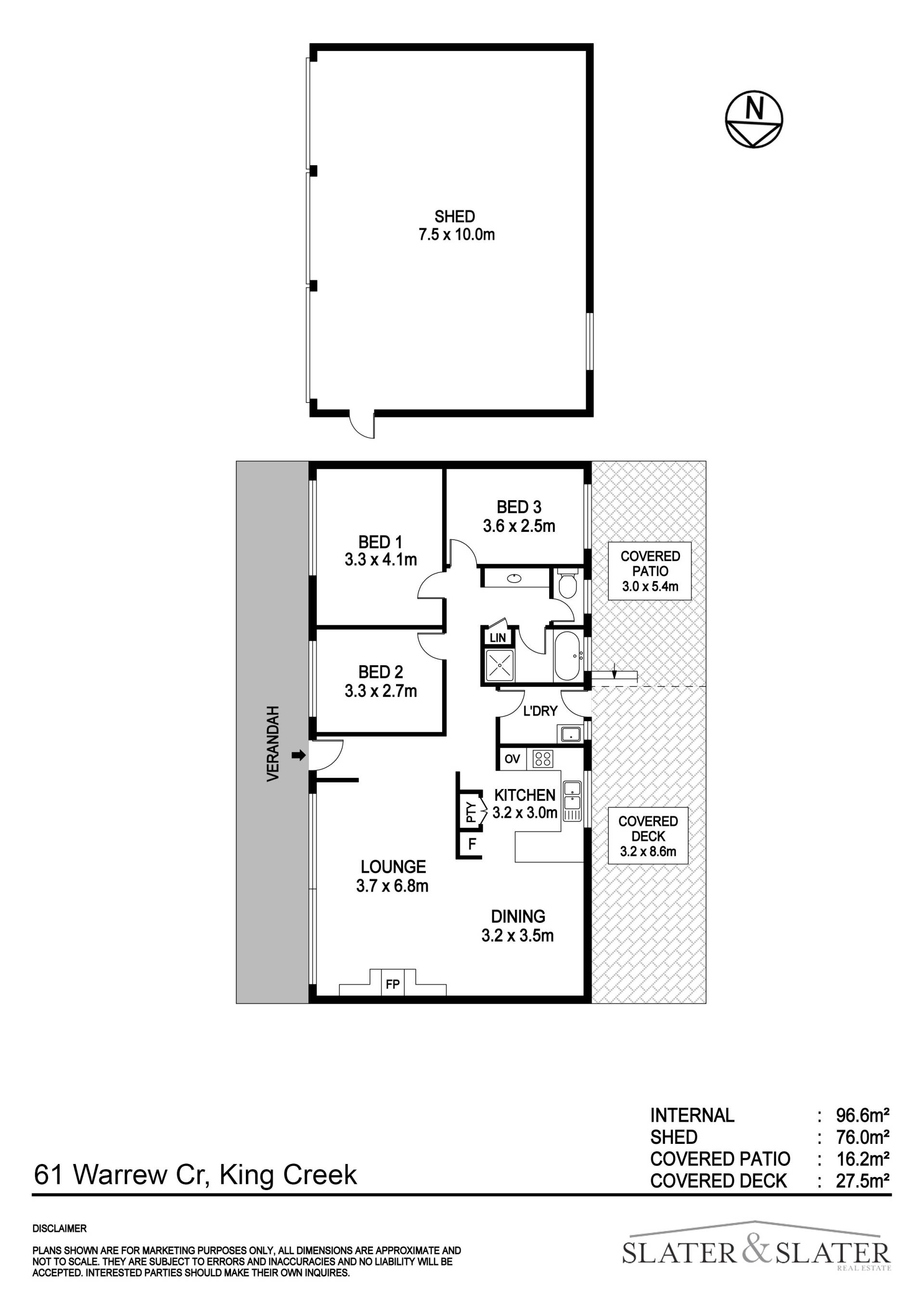
The home offers a comfortable indoor/outdoor living environment with an extensive number of improvements to the property.

The interior has been newly painted and features new bamboo flooring throughout. The living, dining and kitchen zone flows through to the wonderful new 3.3m x 8.5m covered deck which truly expands the footprint of the home.

There is air conditioning and a wood heater with fans in every room ensuring year round comfort.

Further improvements include the new three bay 9.0m x 7.5m shed with awning and significant retained garden areas as well as quality mesh fencing to ensure pets and animals are secure.

With prices in King Creek rapidly appreciating, this property offers a wonderful opportunity to gain a foothold in this popular and convenient acreage lifestyle location.

Please contact the exclusive agent Julie Slater on 02 6585 2212 or 0499 994 241 for more information.

 

Features

Deck Horse shelter Wood heater Air conditioner Gutter Guard Bamboo Flooring Freshly painted throughout Fully Fenced Circular driveway 3 Bay shed Town water Verandah
3 1 3 5,600 m2
Address 61 Warrew Cres, King Creek
Price SOLD for $670,000
Property Type Residential
Property ID 510
Category Acreage Semi-rural
Land Area 5,600 m2

Agent Details

Julie Slater photo

Julie Slater

0499 994 241
View Profile