Appealing King Creek lifestyle package

This appealing property combines a tastefully updated home with a convenient location and great sized block at a rarely available price point in King Creek.

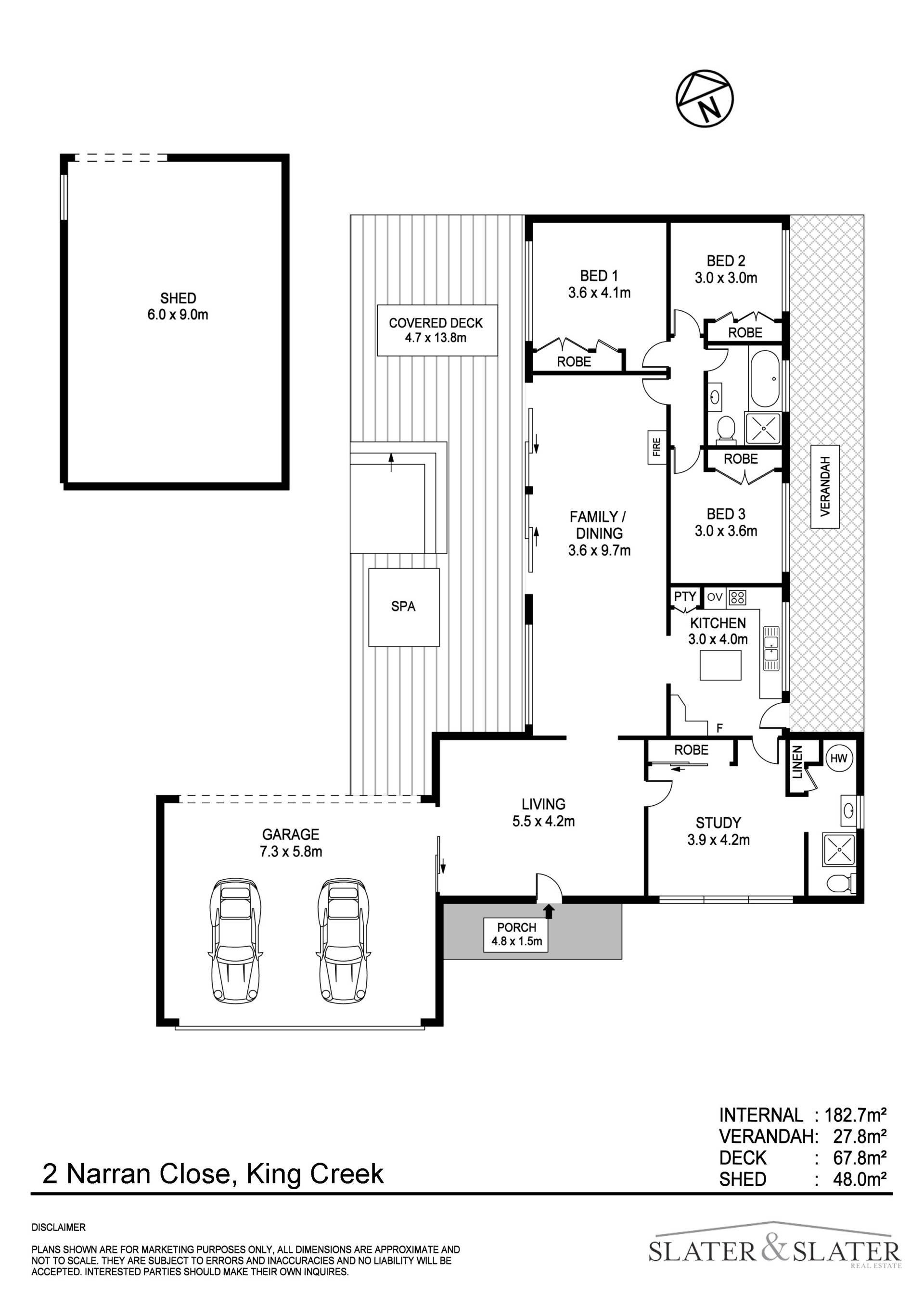
Set on a level acre (4046m2) there is plenty of space for the family with a shed/workshop and a day shelter for a pony.

The home has been modernised inside and out with an extensive list of improvements and enhancements.

New fixtures and fittings, flooring, painting, carpets and air con have provided the home with an attractive and flowing interior.

A large living space flows though to the main family living/dining and kitchen. This extends out through sliding doors to the newly decked entertaining area with built-in spa and above ground pool.

All the bedrooms have been tastefully updated and have built-in wardrobes. They are serviced by the renovated main bathroom with bath, shower, toilet and vanity.

There is a study/guest bedroom with its own shower/ensuite and toilet that combines with the laundry.

The new drive-through double garage provides great access to the rear gardens that are dotted with numerous fruit and shade trees.

This property is ready to be enjoyed and provides an excellent opportunity to secure a King Creek acreage lifestyle.

Please contact the exclusive agent Julie Slater on 02 6585 2212 or 0499 994 241 for more information.

 

Features

Above-Ground Pool Deck Outside Spa Verandah Undercover outdoor area Fireplace Reverse cycle air conditioner Town water Water Tank Horse shelter Mower shed Freshly painted throughout New Carpet
3 2 2 4,046 m2
Address 2 Narran Cl, King Creek
Price SOLD for $590,000
Property Type Residential
Property ID 413
Category Acreage Semi-rural
Land Area 4,046 m2

Agent Details

Julie Slater photo

Julie Slater

0499 994 241
View Profile