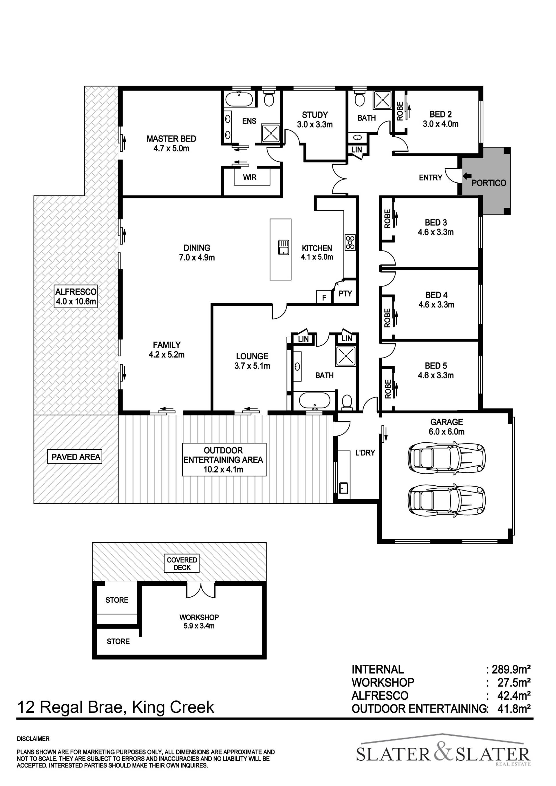
Expansive five bedroom plus study home on 1.5 acres

This six year old steel-framed, brick home offers an expansive acreage lifestyle on a gently sloping 5980m2 set in a quiet cul de sac in the popular King Creek area within easy access to Port Macquarie and Wauchope.

Surrounded by wonderful established gardens with mature plantings the property combines immaculate presentation with a private tranquil setting and clear views towards Bago Mountain.

The circular driveway, high portico and wide entrance hall provides a sense of arrival to the light-filled home that features 9ft ceilings, sleek tiling and a north-to-rear aspect.
Perfect for a number of household combinations, the home features around 350m2 of flowing indoor and outdoor spaces, five bedrooms, a separate study and three bathrooms.

Family life, entertaining and places for relaxation are easily accommodated by the home’s design that boasts an impressive family, dining and kitchen zone that opens through two sets of sliding doors to a 40m2 undercover alfresco area at the rear and an additional entertaining area at the side of the home.

A further separate living area is ideal for the children as a media/activity space.

The kitchen features caesarstone bench tops with island bench/breakfast bar, 900mm gas stovetop with electric oven and abundant storage.

The spacious main bedroom has sliding doors to directly access the alfresco area and enjoys an ensuite with bath and shower, walk-in wardrobe and adjoining study.

There are three double-sized bedrooms with built-in wardrobes serviced by the large main bathroom with separate bath and shower. The fourth double bedroom is ideal for guests as it is adjacent to the third bathroom with shower and toilet.

An indoor/outdoor lifestyle can be fully enjoyed at this substantial property with ducted heating/cooling inside and large covered areas, abundant gardens and lawns, two garden sheds and workshop with storeroom to make the most of the 1.5 acres.

Please contact the exclusive agent Julie Slater on 02 6585 2212 or 0499 994 241 for more information and to arrange a private inspection.

5 3 2 5,980 m2
Address 12 Regal Brae, King Creek
Price SOLD for $900,000
Property Type Residential
Property ID 389
Category Acreage Semi-rural
Land Area 5,980 m2
Floor Area 370 m2

Agent Details

Julie Slater photo

Julie Slater

0499 994 241
View Profile