Sold

Best value watefront home in unique island location

Our motivated vendor is prepared to meet the market and has significantly reduced the price of this desirable property located on Rawdon Island only 20 minutes from the stunning beaches of Port Macquarie.
Featuring over 300 metres of absolute water frontage on a peaceful deepwater, navigable-to-Port stretch of the Hastings River, this bold and striking home benefits from a private position set on 5.58 level, fertile and pastured hectares (13.8 acres), ideal for horses or other animals.(SEE VIDEO TOUR).
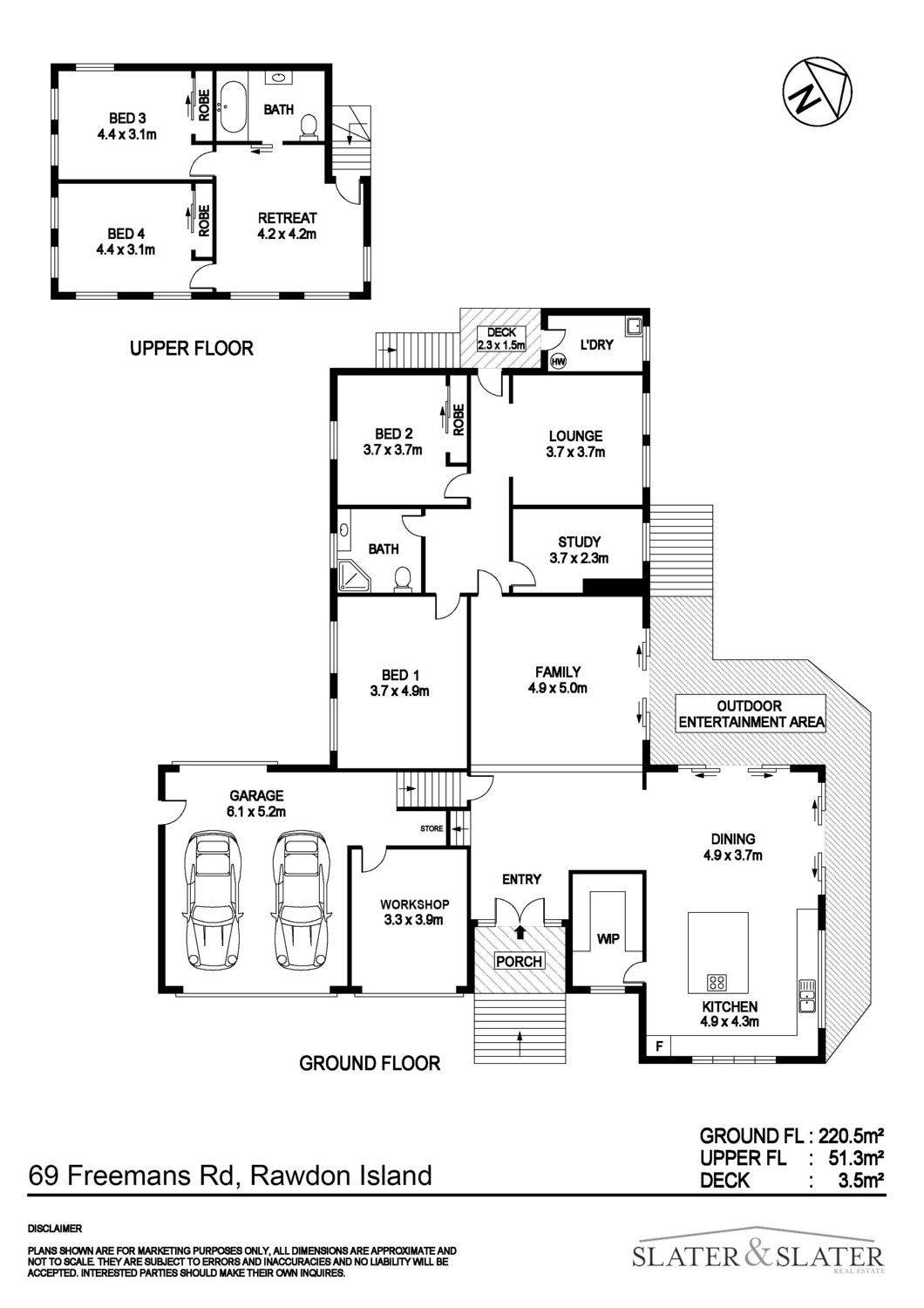
Having recently undergone a significant program of works including substantial additions and extensions as well as a complete modernisation the home now offers four bedrooms plus study, two bathrooms, an open plan living, dining and kitchen zone and two further living areas. The floorplan and overall dimensions offer a versatile and flexible living environment to suit a range of lifestyles with flowing spaces flooded with natural light.
The riverside verandah is an ideal space for relaxing while re-establishment of the pontoon will ensure enjoyment of the river can be maximised.
Representing exceptional value, this property offers buyers the opportunity to secure a very special slice of paradise.
Please contact the exclusive agent Julie Slater on 02 6585 2212 for more information and to arrange a private viewing.

Features

Outdoor entertainment area Fenced Water frontage Water access Study
4 2 4 5.58 ha
Address 69 Freemans Road, Rawdon Island
Price SOLD for $1,150,000
Property Type Residential
Property ID 237
Category Acreage Semi-rural
Land Area 5.58 ha

Agent Details

Julie Slater photo

Julie Slater

0499 994 241
View Profile