Sold

New Price-Generous block in Riverbreeze Estate

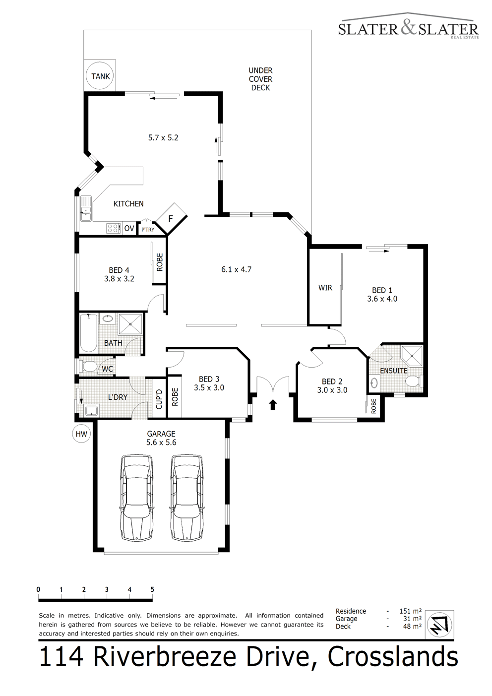
This comfortable four bedroom brick home is set back on a generous 811m2 corner block that enjoys a private and relaxing indoor/outdoor living environment.
The home features a large living zone that flows through to a spacious kitchen and dining area with cathedral ceilings. There is a lovely outlook to the outside entertaining area and patio set among the manicured and low maintenance gardens.
The main bedroom is located at one end of the home and enjoys an ensuite with shower, toilet and vanity. It has built-in wardrobes and access to outside through a sliding door. The other three bedrooms all have ceiling fans and built-in wardrobes and are serviced by the main bathroom which has a bath, shower and separate toilet.
The property also features a double garage with remote door, plenty of room to park a campervan, two garden sheds and a rainwater tank.
Buyers looking for a quality home in a well regarded area will appreciate being able to move straight in and enjoy their purchase from day one.
Please contact the exclusive agent Julie Slater on 02 6585 2212 for more information and to arrange a private inspection.

Features

Outdoor entertainment area
4 2 2 811 m2
Address 114 Riverbreeze Drive, Wauchope
Price SOLD for $505,000
Property Type Residential
Property ID 228
Category House
Land Area 811 m2

Agent Details

Julie Slater photo

Julie Slater

0499 994 241
View Profile