Sold

Established acreage property in excellent location

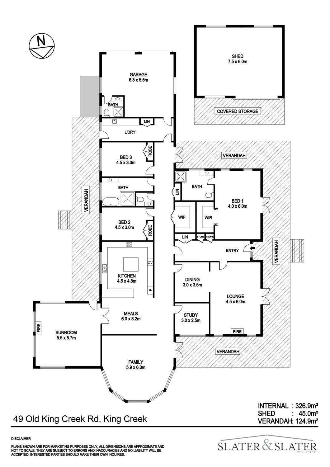
Set on nearly two level acres (7741m2) in an established area of King Creek is this spacious three bedroom plus study brick homestead that enjoys a peaceful and private position surrounded by expansive lawns dotted with mature trees.
The home features generous dimensions throughout its floorplan including three substantial living zones, formal and informal dining and undercover verandahs at the front and rear promoting indoor/outdoor living.
The main bedroom benefits from a large ensuite and walk-in wardrobe with French doors that open onto the front verandah while the other two bedrooms have built-in wardrobes and are serviced by the main bathroom with shower, bath and separate toilet.
The substantial kitchen adjoins an informal dining area and enclosed sunroom that has a cozy woodheater for winter and connects to the rear verandah for summer.
The home also enjoys significant storage and cupboards throughout, a double garage with additional bathroom, a seven panel 1.75kw solar system and two large water tanks for the gardens.
The home is set well back from the road offering large lawns and gardens surrounding the home and providing plenty of privacy.
Buyers looking for an established acreage property will enjoy all that this wonderful package has to offer.
Please contact the exclusive agent Julie Slater on 02 6585 2212 for more information and to arrange a private viewing.

Features

Verandah Dam Study
3 3 2
Address 49 Old King Creek Road, King Creek
Price SOLD for $690,000
Property Type Residential
Property ID 216
Category Acreage Semi-rural

Agent Details

Julie Slater photo

Julie Slater

0499 994 241
View Profile